Logo Art, interpretation of Roy Lichtenstein 3-d Sculpture. Homeowners on Marhta's Vineyard who show appreciation for Modern design and Art

Design and Implementation

Projects that meet the needs of your family and home.

Specializing in the Victorian Era Homes of Oak Bluffs, MA.

Serving Greater Martha’s Vineyard for Over 25 Years.

Please get in touch today for Design, Permitting, Historical Documentation, Renovation and Restoration Services.

Full Integration of Historic, State and Local By-Laws.

1,423 sf Interior / 750 sf Exterior with new Porch and Roofs

4 beds, 1 Full / 2 Half Baths Exterior Shower and Shed

Three Season updates with all New Plumbing, Electrical and HVAC

Built 1864, Renovated 2024/25

Home addition design-build Oak Bluffs, MA Martha's Vineyard | Veng Design and Remodel MV

1100 sf New Construction / 1640 sf Exterior with new deck / 840 sf existing interior renovation

CCHDC/ZBA/Copeland Planning

5 beds, 3 Full/1 Half Baths

Year Round Reconstruction with all new Plumbing, Electrical and Heating

Built 1890, Renovated 2022/23

Home addition design-build Oak Bluffs, MA Martha's Vineyard | Veng Design and Remodel MV

Exterior Reconstruction

New Insular Roof/ Custom window replacements/ Skirts and Siding/MVCMA and Conservation Planning

Built 1879, Renovated 2020/21

Architectural design drawings custom home Martha's Vineyard | Veng Design and Remodel MV
Home addition design-build Oak Bluffs, MA Martha's Vineyard | Veng Design and Remodel MV

Additions and Reconstruction

400 sf New Construction/1200 sf Exterior/ 340 sf New Deck and Porch/Concrete Cellar/Radiant Heat/Outdoor Sauna

2 beds, 1 Full / 1 Half Baths

Built 1999, Renovated 2020

Home addition design-build Oak Bluffs, MA Martha's Vineyard | Veng Design and Remodel MV
Home addition design-build Oak Bluffs, MA Martha's Vineyard | Veng Design and Remodel MV

Farmers Porch and Three Season Enclosure

Renovated 2019

Home addition design-build Oak Bluffs, MA Martha's Vineyard | Veng Design and Remodel MV
Home addition design-build Oak Bluffs, MA Martha's Vineyard | Veng Design and Remodel MV
Home addition design-build Oak Bluffs, MA Martha's Vineyard | Veng Design and Remodel MV
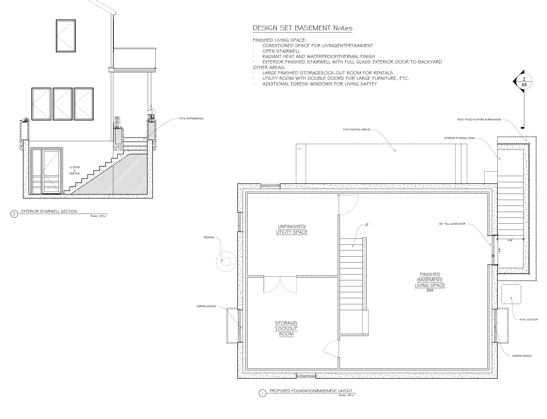
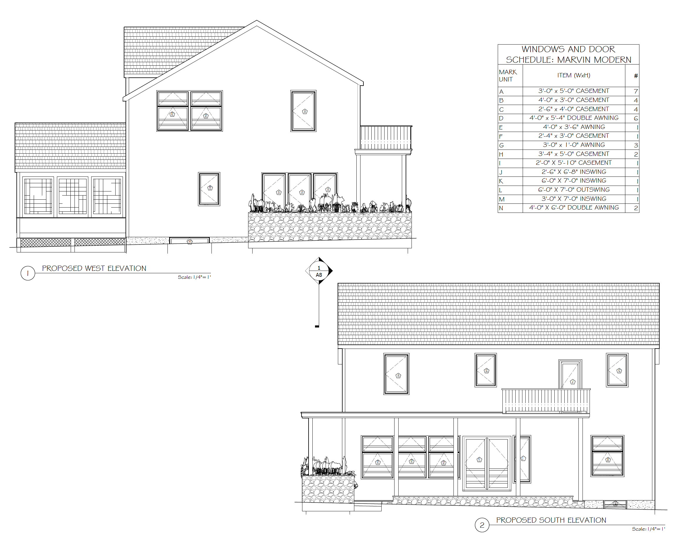
Architectural design drawings custom home Martha's Vineyard | Veng Design and Remodel MV
Architectural design drawings custom home Martha's Vineyard | Veng Design and Remodel MV
Architectural design drawings custom home Martha's Vineyard | Veng Design and Remodel MV

Design Set for Modular Construction

-

Pre Design Planning/Site Survey/Conceptual Development/Kitchen Design

Architectural design drawings custom home Martha's Vineyard | Veng Design and Remodel MV

Thanks to All our great clients over the years. Below are some Archival Photographs of houses that we completed as part of our full roofing services between 2004-2012

Martha's Vineyard design-build firm custom home construction Oak Bluffs MA | Veng Design MV

Interested?